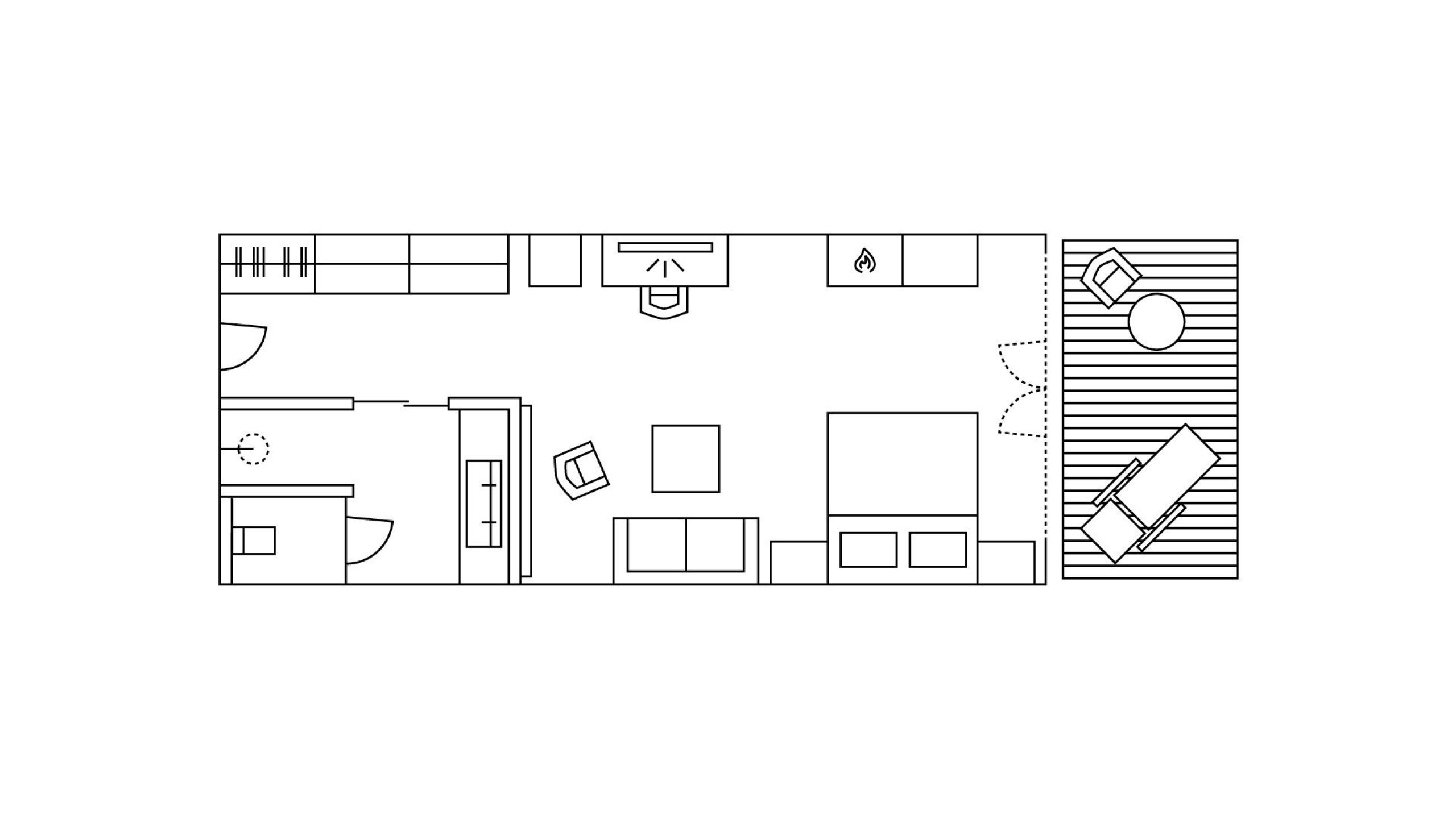
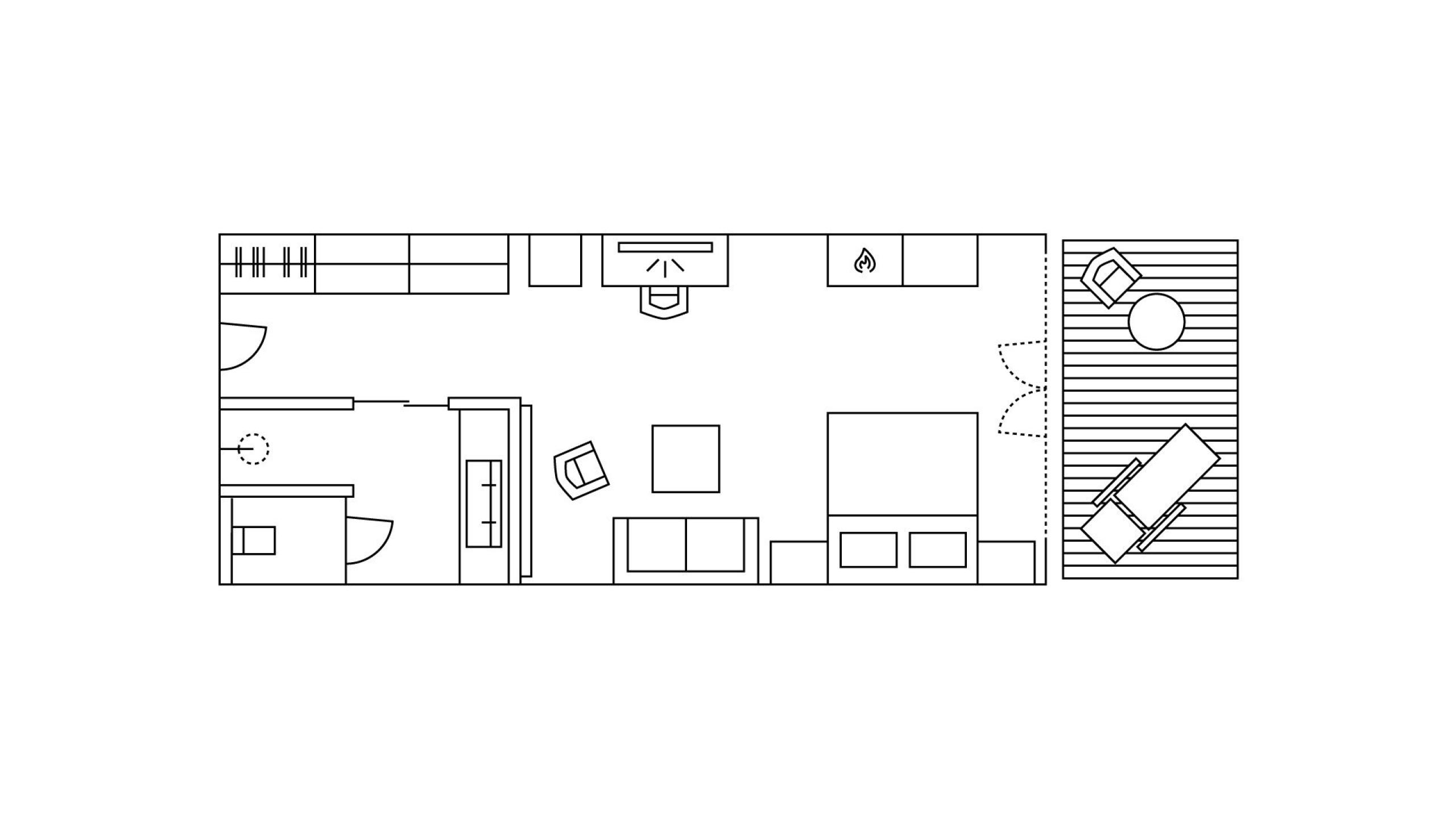
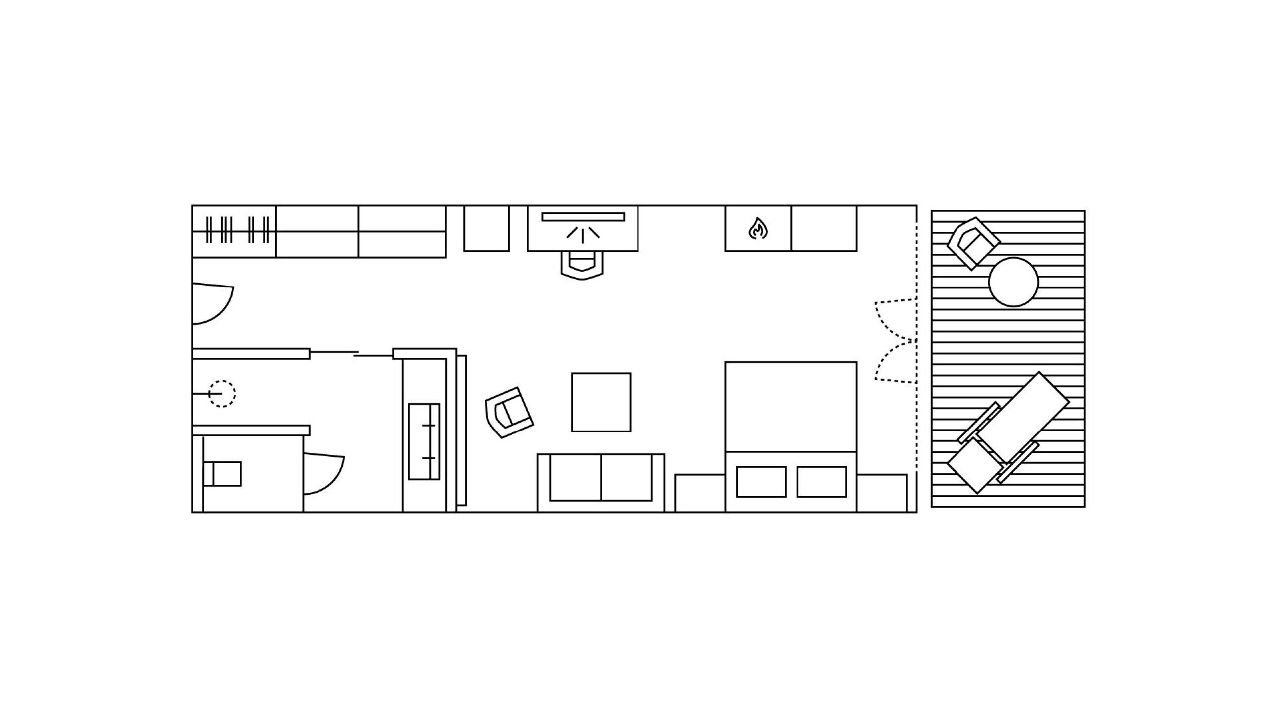
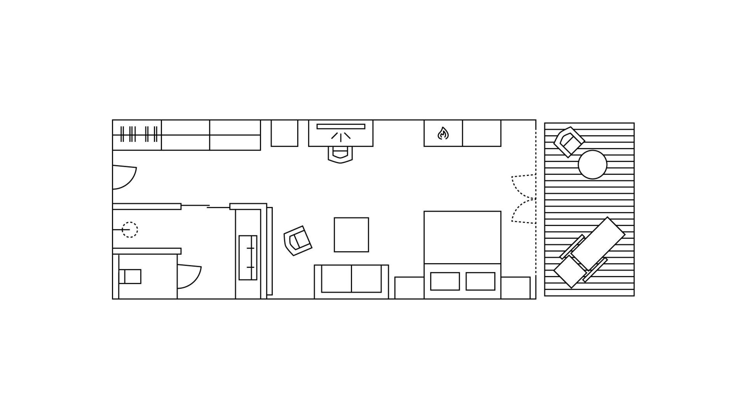
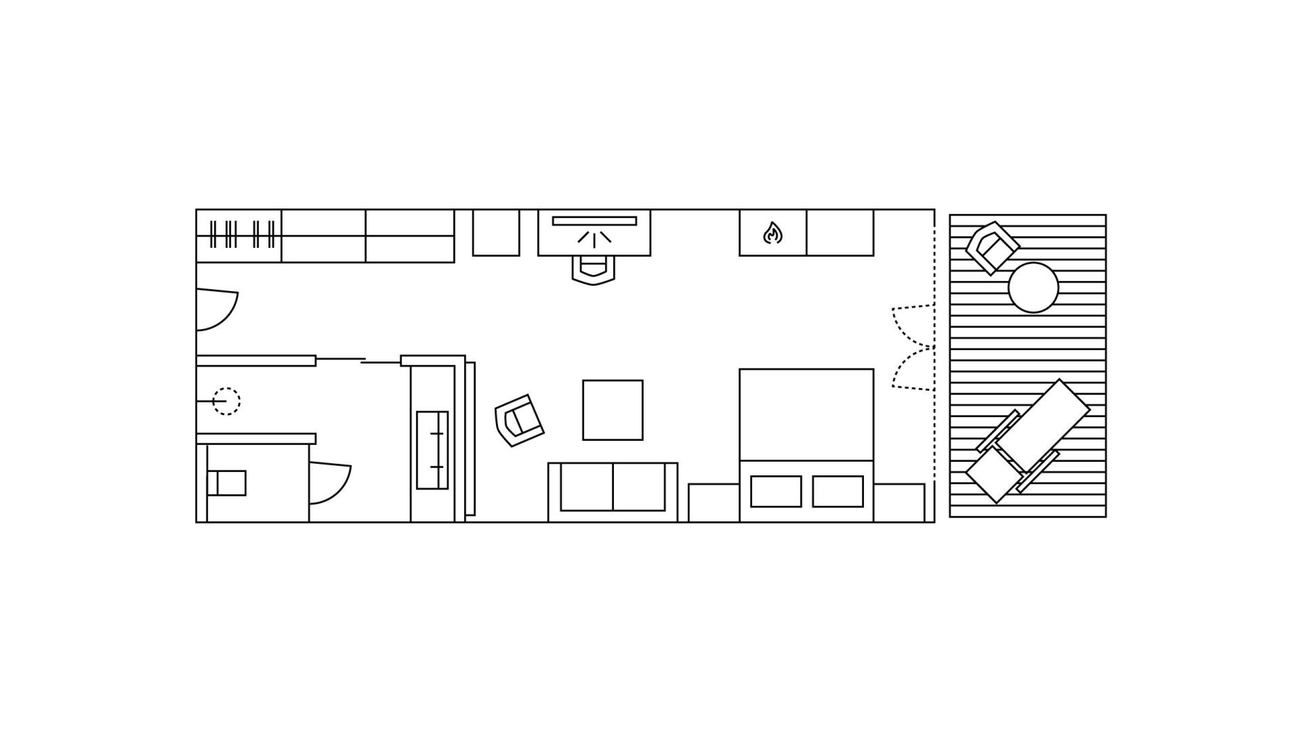
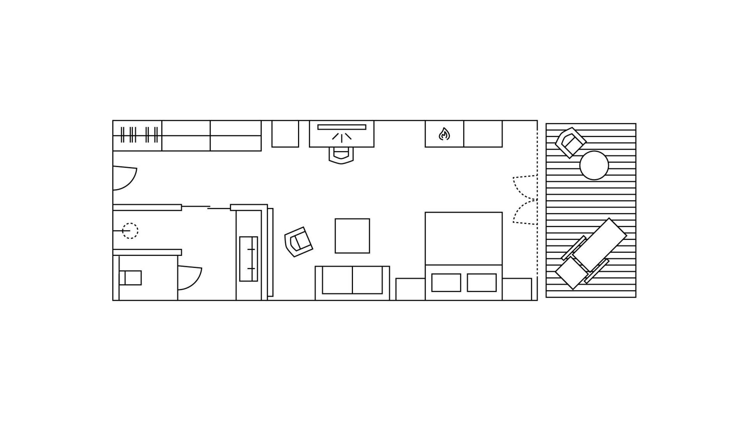
Suite Romantica
42 m² - Semplicemente da innamorarsi. La nostra Suite Romantica con un arredamento esclusivo con accogliente salottino e poltrona, pavimento in legno, mobili in legno naturale, bagno moderno con grande doccia walk-in, doppio lavabo, WC separato (senza bidet), caminetto a parete romantico con fuoco di effetto, confortevole letto a scomparsa ribaltabile per una persona aggiuntiva, frigobar, cassaforte, 55” flat screen TV, telefono, WIFI gratuito, grande balcone rivolto a sud con sdraio relax, posto garage e aria condizionata.
Dotazioni
Altre camere
Confortevoli oasi di pace curate nei minimi dettagli: le nostre camere, suite e chalet racchiudono l’essenza del lifestyle altoatesino.
Iscrizione alla newsletter
Wellness di lusso, piaceri culinari gourmet e attività rivitalizzanti: non perdetevi le ultime novità dei Belvita Leading Wellnesshotels Südtirol.









